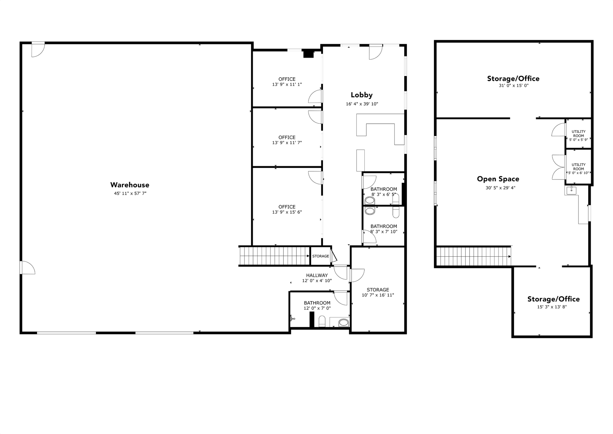
Standalone industrial building on a 0.9 acre fenced lot. The warehouse portion of the building is approximately 60’ x 50’ and a 1,200 SF mezzanine provides extra storage space. There are 3 offices and a reception area at the front of the building. Two drive-in doors 10’ wide x 12’ high.
BP (Business Park) zoning allows for light industrial uses.
![]()



"*" indicates required fields