Skip to main content

97 Fabrication Drive

$13.50 SF/YR (Full Service) (Lease)
97 Fabrication Dr, Pueblo West, CO 81007
Flyer

Property Details

  • Property Type: Industrial
  • Space Available: 4,793 SF
  • Building Size: 4,793 SF
  • Lot Size: 6.33 Acres
  • Zoning: I-2

Overview

Located at the corner of Fabrication Dr and E Industrial Blvd in the established Pueblo West Industrial Park, this functional industrial building offers an excellent opportunity for contractors, service users, and industrial operators seeking both building and yard space.

The property features a ±4,793 SF office/warehouse building with an efficient layout, situated on ±3.33 acres with the ability to expand up to ±6.33 acres total. This combination of indoor space and scalable yard is a rare opportunity in the Pueblo West market.

Yard Space

  • The property includes a large, usable yard area suitable for outdoor storage, fleet parking, or material lay down.

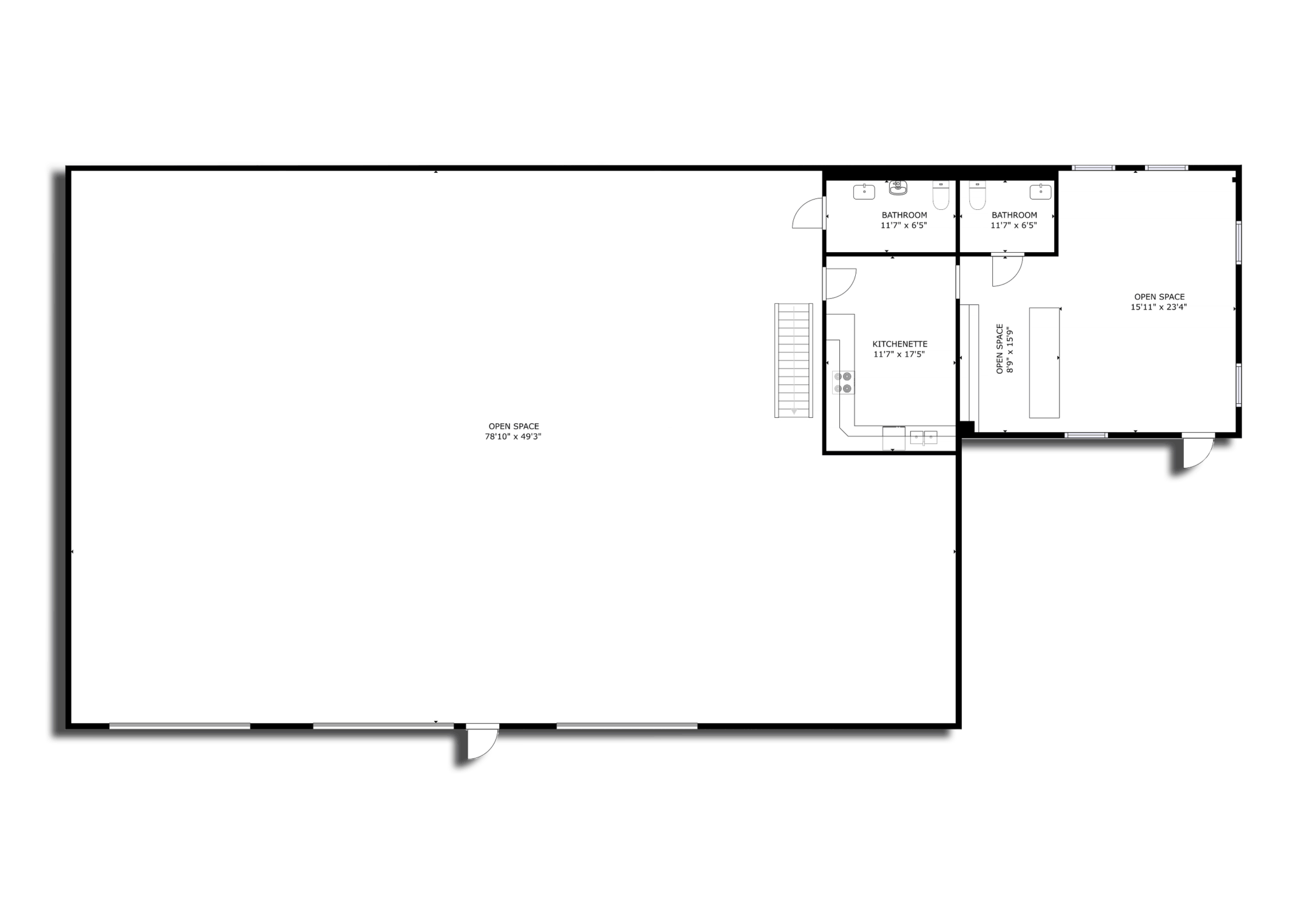
Warehouse

  • The warehouse makes up approximately 80% of the building and is equipped with three (3) 14’ overhead doors, allowing for efficient loading, equipment storage, and operational flow.

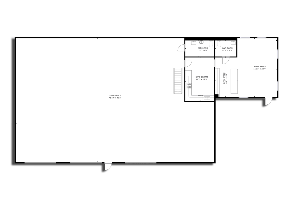
Office

The office portion makes up approximately 20% of the building and includes:

  • Reception/showroom area
  • Private office space
  • Kitchenette
  • Multiple restrooms

Additional features include:

  • On-site truck scale (vehicle weigh scale)
  • Storage shed
  • Ability to expand yard area up to ±6.33 acres total

Loading

Highlights

  • Up to ±6.33 acres total available
  • Three (3) 14’ overhead doors
  • Truck scale on site
  • Functional 80/20 warehouse-to-office layout
  • Corner lot with strong access
  • Industrial Corridor

Location Map

Floorplans

Virtual Tour

Listing Broker

Request Information

"*" indicates required fields

This field is for validation purposes and should be left unchanged.
This field is hidden when viewing the form