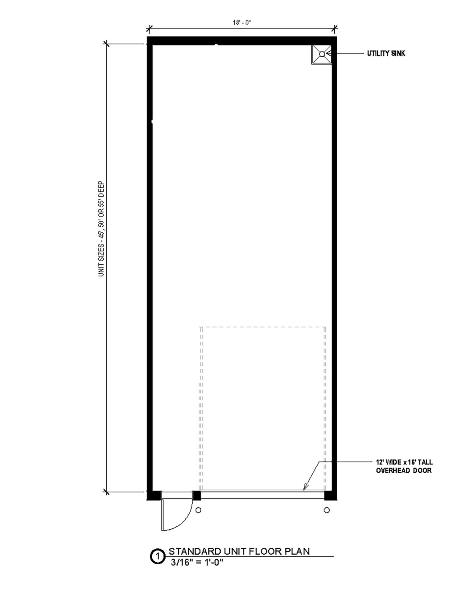
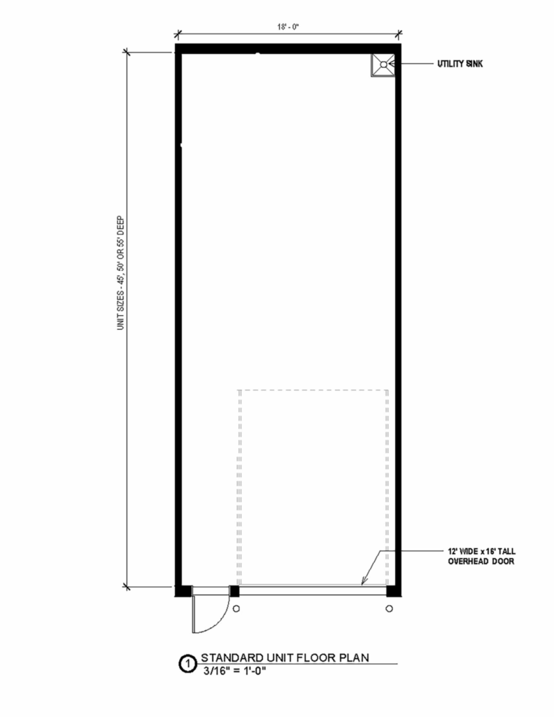
This 810 SF unit features large 15×12 ft overhead doors, man door access, and bathrooms on site. The space includes a hot water sink, 125-amp electrical service, and 4000 PSI concrete flooring, making it well suited for vehicle storage, RVs, business equipment, or recreational toys.
Great option for personal storage or business use.
Message me for pricing and additional details. I also help clients lease and purchase commercial real estate throughout the area if you’re looking for other options.
![]()


"*" indicates required fields