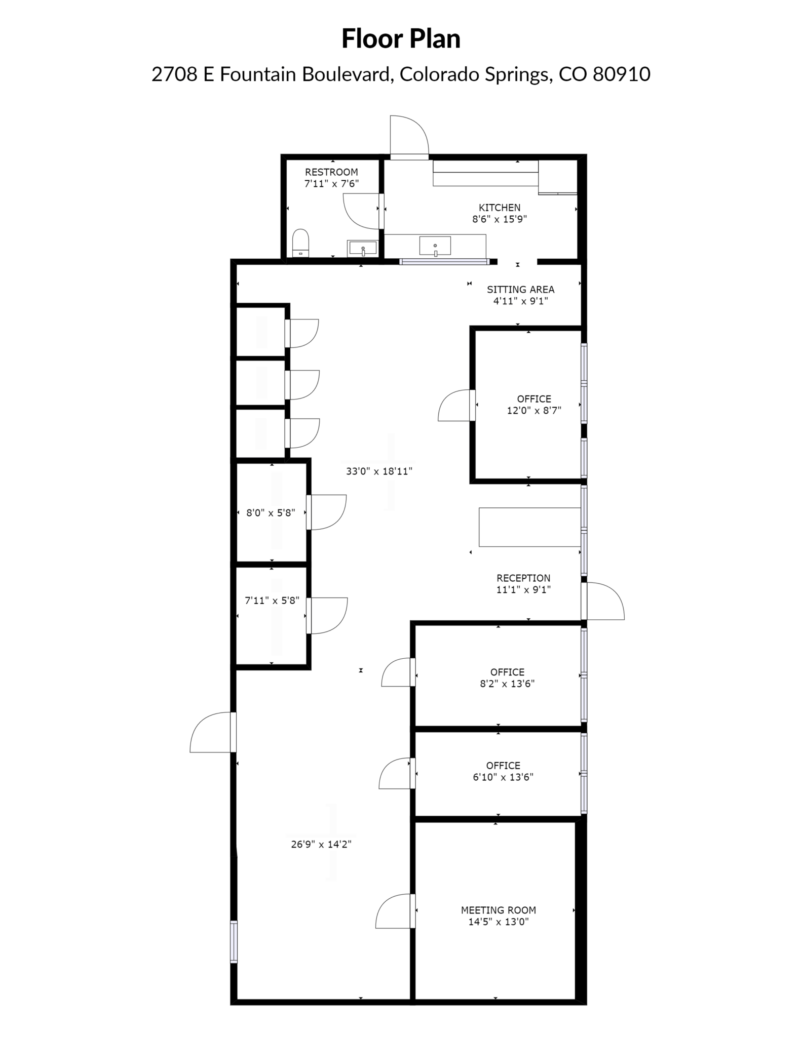
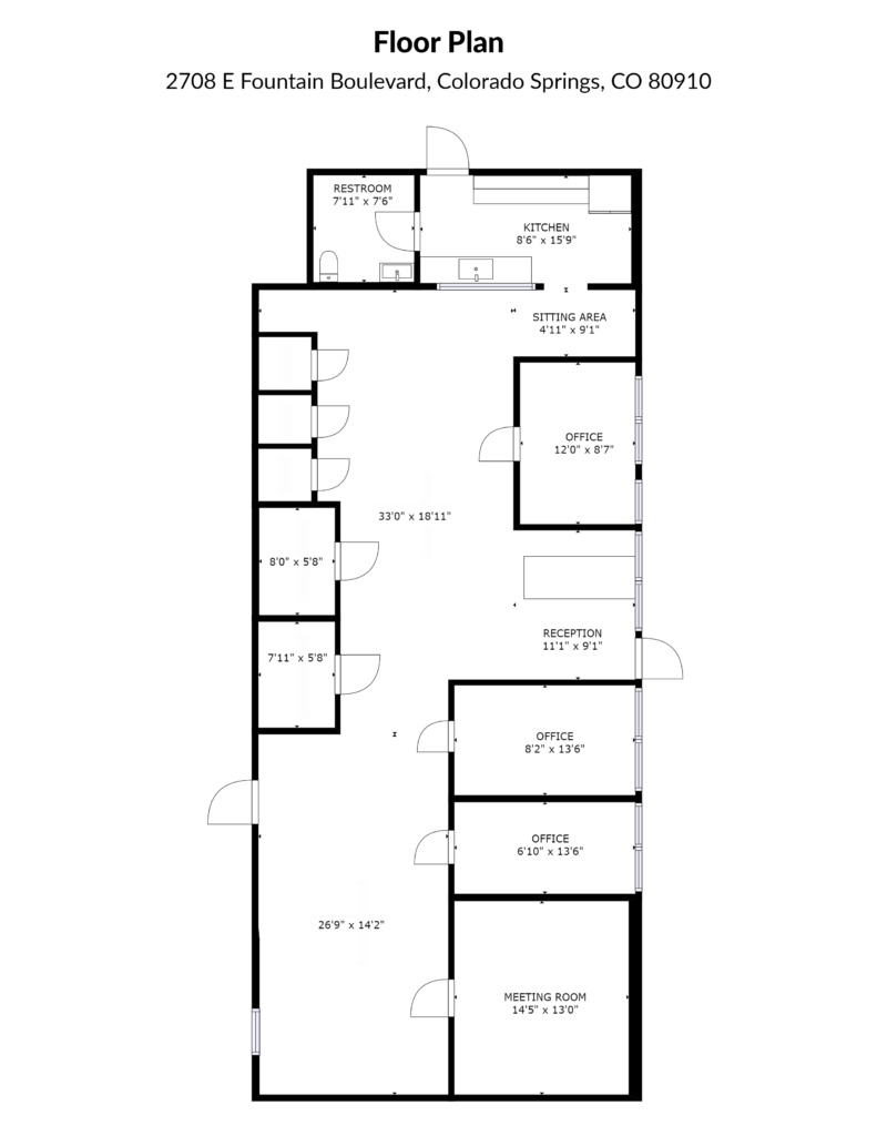
Newly renovated and move-in ready! This high-visibility, freestanding commercial building offers exceptional exposure near the corner of East Fountain Boulevard and South Circle Drive – one of Colorado Springs’ key east-west corridors. The property features ample on-site parking, excellent signage potential, and sits directly across from the new U-Haul Moving & Storage facility, creating great drive-by visibility and steady traffic. Zoned MX-M (formerly C-5), the building supports a wide range of uses including retail, professional office, medical, and service-based businesses. Call today for details or to schedule a private showing!
Whether you’re looking to lease a quality space or purchase and become your own landlord, this property checks every box. The Seller is willing to carry the note, making ownership easier and more affordable than ever.
![]()


"*" indicates required fields