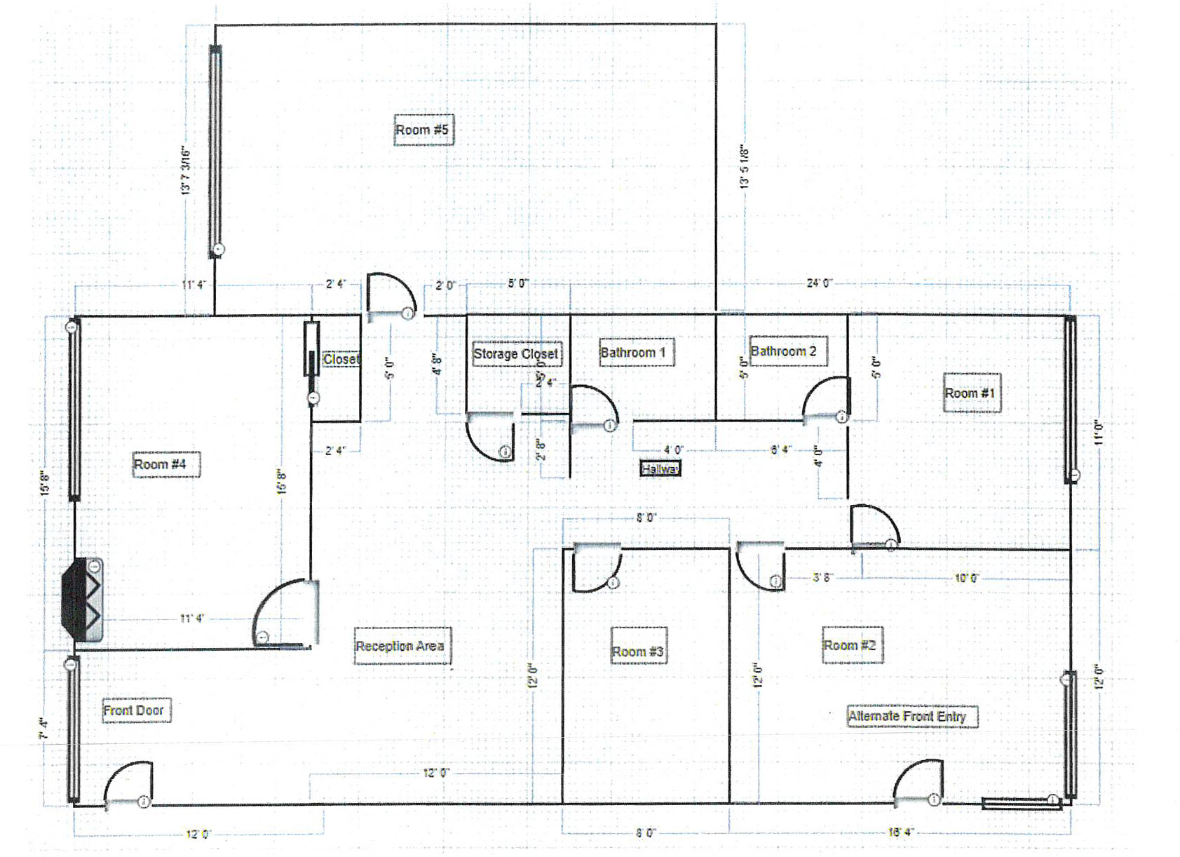
Check out this roomy 1,562 SF office suite at 2155 N. Academy. As soon as you walk in, you’re greeted by a large reception area that leads to five generously sized private offices. The space also includes two restrooms, making it a practical layout for a range of professional uses. This location provides a comfortable, efficient work environment in a convenient spot. Reach out today to Steve Leigh or Guy Cox to schedule a showing or to learn more!
![]()


"*" indicates required fields