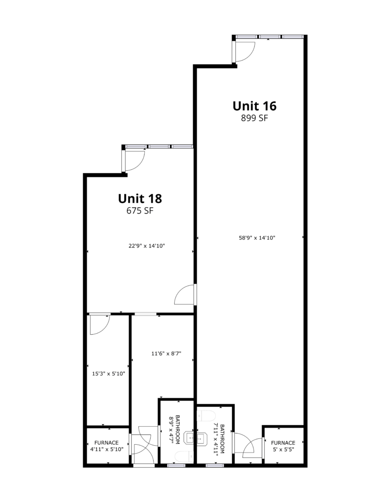
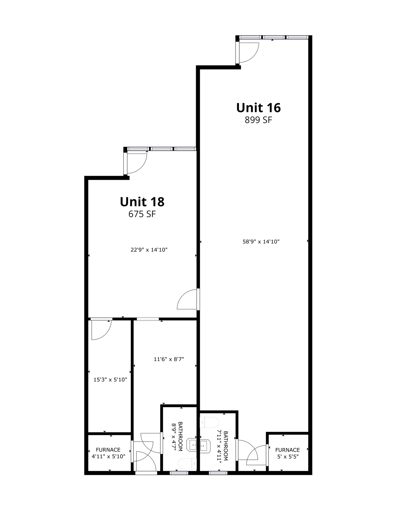
116–118 Pueblo Avenue is a charming mid-century modern retail property located in the heart of downtown Colorado Springs. Previously home to a salon that occupied both suites, the building offers flexibility for a new tenant; the landlord is open to leasing the entire 1,574 RSF or dividing the property back into two suites, with Unit 116 at approximately 899 RSF and Unit 118 at approximately 675 RSF. The property has been tastefully updated and features stained concrete floors, expansive storefront windows, and wood ceilings that create a warm and inviting atmosphere. Tenants will also enjoy a private, fully fenced back patio that enhances the indoor and outdoor experience.
Lease terms are offered at $1,500 to $3,300 per month, plus utilities. This unique space is ideal for a variety of retail or service uses seeking a central location with excellent visibility and character. Please do not disturb the tenant; call for more information or to arrange a private showing with Holly Trinidad or Chris Myers.
![]()


"*" indicates required fields