Skip to main content

3344 E Waterloo Road

$975,000 (Sale)
$12.00 SF/YR (Plus Utilities) (Lease)
3344 East Waterloo Road, Akron, Ohio 44312
Flyer

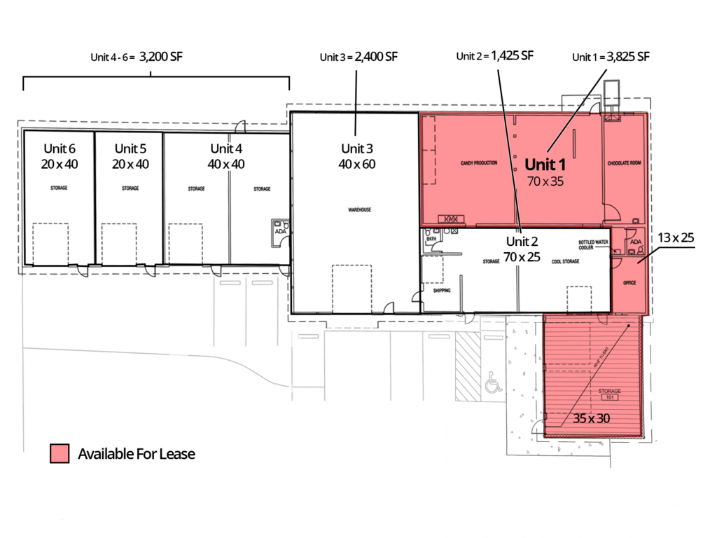
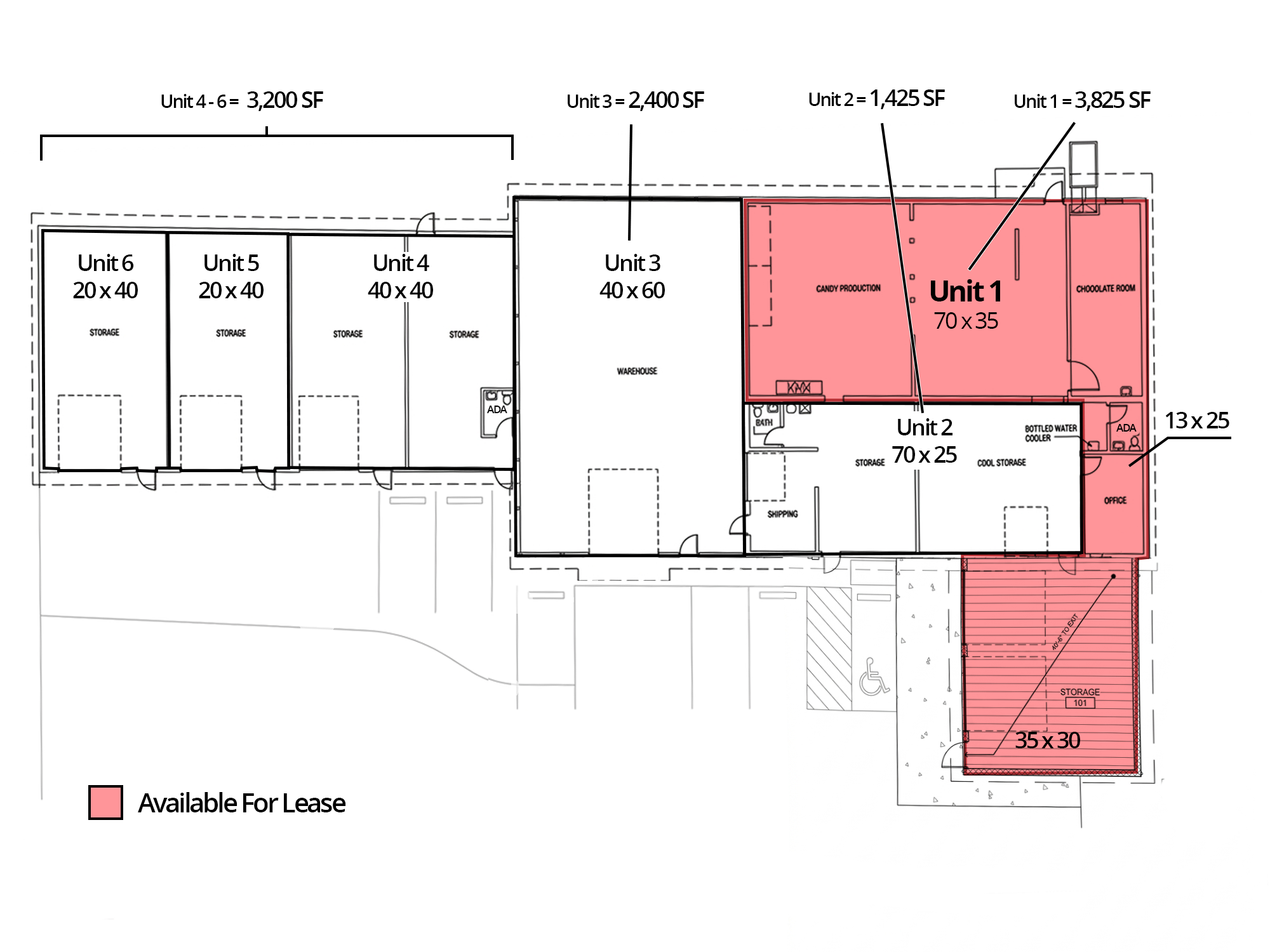
Property Details

  • Property Type: Industrial
  • Space Available: 3,828 SF
  • Building Size: 11,000 SF
  • Lot Size: 1.02 Acres
  • Zoning: Commercial Light Mfg

Overview

Multi-Tenant Commercial Industrial Flex Property includes Food Prep Space

  • Incredible Opportunity for an Investor, Occupier or Combination
  • 10,850 SF of like-new storage space and food prep space with hood, sinks and external grease trap
  • Unit 1 previous food prep space = 3,825 SF with 14’ drive-in door available for lease
  • Units 2-6 currently leased ranging from 800 SF to 2,400 SF
  • Ceiling Hts range from 12’ to 14’ to 16’
  • Drive-In Doors 12’ to 14’
  • Built 2012
  • Metal Roof age 7 years
  • Public Water/Sewer
  • Lakemore Village/Springfield Twp

Loading

Location Map

Floorplans

Request Information

"*" indicates required fields

This field is for validation purposes and should be left unchanged.
This field is hidden when viewing the form