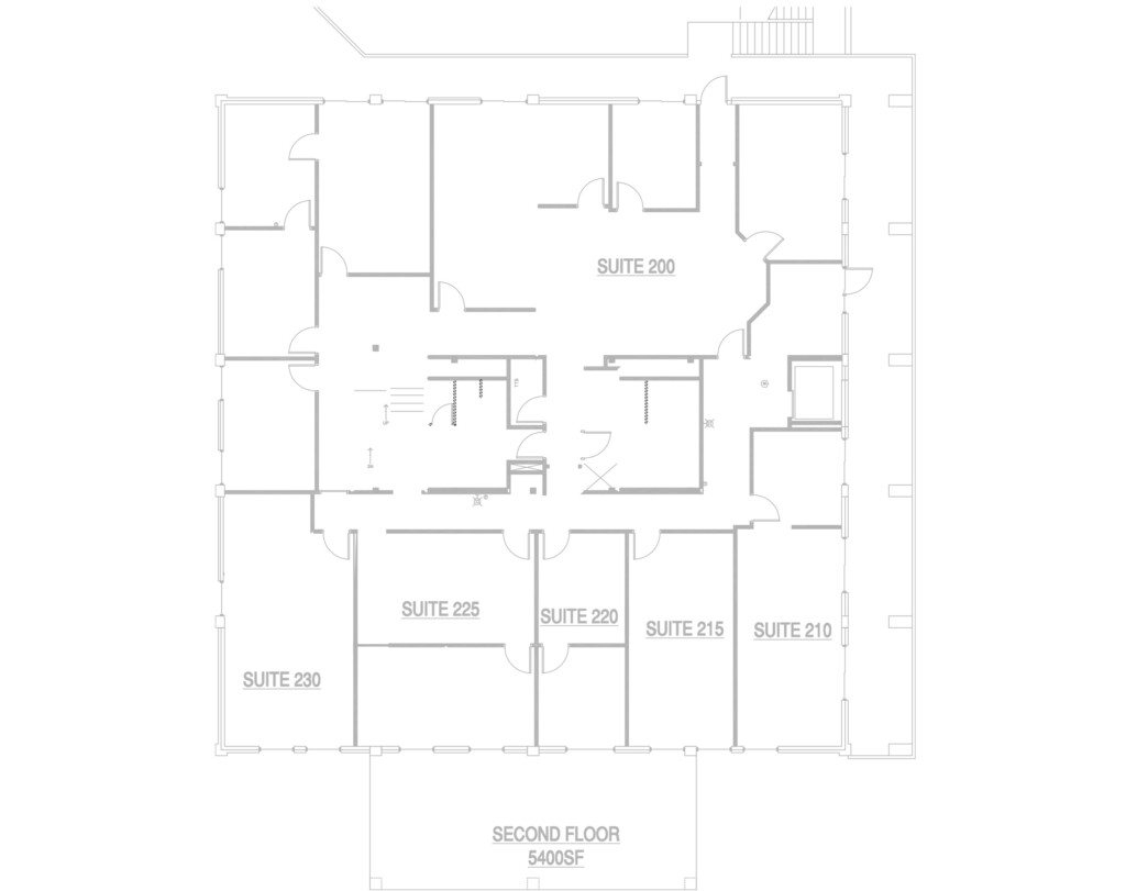
Hoff & Leigh is proud to present this rare office building for sale in Parker, Colorado. This building is ideally set up for an owner/user looking to occupy a portion of the building while being able to maximize the rest of the building as an investment. The building has a large parking lot that was recently resealed and striped. It has a covered drive thru area (from previous bank tenant) which allows for a multitude of uses. The building exterior was recently painted, the main floor received new paint and flooring in common areas and the restrooms have been completely remodeled. The building has an elevator perfect for any medical tenants and a substantial electrical service with the ability to add a generator. Currently the building is approximately 87% leased. Basement is leased by current owner and owner would be willing to extend their lease or move depending on the new owner’s needs.
*There is also space available For Lease.
Property Taxes: 2024 – $23,101
![]()


"*" indicates required fields